DMC型脈沖單機布袋除塵器是消化吸收G外同類產品先進技術經改進后設計而成的小型布袋除塵器,該類除塵器是采用高壓(0.5~0.7MPa)大流量脈沖閥逐條濾袋噴吹清灰的技術,與G內其它單機除塵器相比,具有清灰動能大,清灰效率高的特點。并且體積小,重量輕結構簡單緊湊、安裝容易、維護方便(外濾式),廣泛用于建材、冶金、礦山、煤炭、非金屬礦超細粉加工等行業的含塵氣體凈化處理系統,是環保除塵的理想設備。
二、構造及工作原理
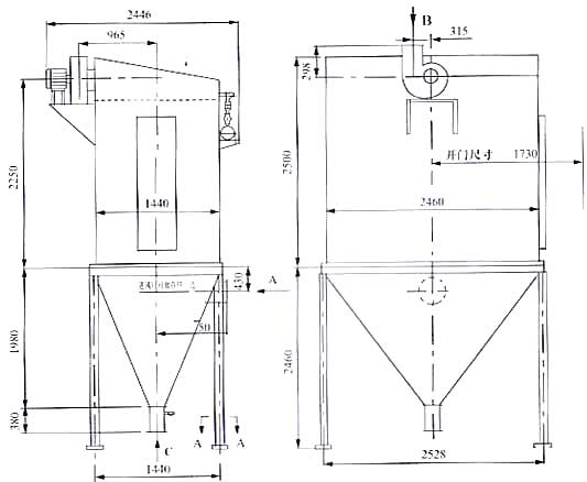
1、單機布袋除塵器結構
該設備主要有以下部分組成:
(1)箱體:包括袋室、凈氣室、多孔板、濾袋、濾袋骨架、檢修門、箱體設計耐壓5000Pa。
(2)噴吹系統:包括主氣管、噴吹管、脈沖閥、控制儀。
(3)進氣排灰部分有兩種形式:一種為標準帶灰斗式,另一種為敞開法蘭式。
2、工作原理
含塵氣體由進氣口進入灰斗或通過敞開法蘭口進入濾袋室,含塵氣體透過濾袋過濾為凈氣進入凈氣室,再經凈氣室排氣口,由風機排走。粉塵積附再濾袋的外表面,且不斷增加,使袋除塵器的阻力不斷上升,為使設備阻力不超過1200Pa,袋式除塵器能繼續工作,需定期清除濾袋上的粉塵。清灰是由程序控制器定時順序啟動脈沖閥,使氣包內壓縮空氣(0.5~0.7MPa),由噴吹管孔眼噴出(稱一次風)通過文氏管誘導數倍于一次風的周圍空氣(稱二次風)進入濾袋在瞬間急劇膨脹,并伴隨著氣流的反方向作用抖落粉塵,達到清灰的目的。
三、選型
1、型號說明
該單機有32、48、64、80、96、112六種規格,其中每個規格分為兩種安裝形式,以滿足不同場合的使用要求,具體型號說明如下:
2、選型參數及選型原則
(1)布袋除塵器選型的主要技術參數為風量、氣體溫度、含塵濃度與濕度。根據工藝設計的風量、氣體溫度、含塵濃度的比較高數值,按略小于技術性能表中的數值為原則,其相對應的除塵器型號,即為所需要的收塵器型號.
(2)表中的耗氣量為工廠集中供氣時的情況,如單D使用空壓機時,表中的耗氣量要放大1.5倍。
(3)壓縮空氣耗量欄中,所提出的耗氣量為該型號設備的比較大耗氣量。
3、設備外形及基礎(見附圖),還可根據用戶場地情況設計符合用戶要求外形的除塵器。
|
|
DMC-32 |
DMC-48 |
DMC-64 |
DMC-80 |
DMC-96 |
DMC-112 |
|
總過濾面積(m2) |
24 |
36 |
48 |
60 |
72 |
84 |
|
過濾風速(m/min) |
1.04~1.67 |
1.15~1.62 |
1.21~1.74 |
1.25~1.67 |
1.27~1.62 |
1.28~1.68 |
|
處理風量(m3/h) |
1500~2400 |
2500~3500 |
3500~5000 |
3500~6000 |
5500~7000 |
6500~8500 |
|
濾袋數量(條) |
32 |
48 |
64 |
80 |
96 |
112 |
|
耗氣量(m3/min) |
0.032 |
0.048 |
0.064 |
0.08 |
0.096 |
0.11 |
|
入口濃度(mg/Nm3) |
200 |
|
出口濃度(mg/Nm3) |
50 |
|
噴吹壓力(Mpa) |
0.5~0.7 |
|
承受負壓(Pa) |
5000 |
|
設備阻 力(Pa) |
≤1200 |
|
脈沖閥 |
規格 | |
|
數量(個) |
|
電機型號功率 |
Y90S-2 |
Y90L-2 |
Y100L-2 |
Y132S1-2 |
Y132S1-2 |
Y132S2-2 |
|
(KW) |
1.5 |
2.2 |
3.0 |
5.5 |
5.5 |
7.5 |
| |
1350 |
1620 |
1850 |
2360 |
2800 |
3200 | |
1220 |
1470 |
1670 |
2150 |
2540 |
2880 |
|

四、訂貨須知
提供的產品不含除塵器三口(進氣口、排氣口、排灰口)以外的部分。如主排風機、非標管道、保溫材料、空氣壓縮機、輸送設備安裝及電線電纜等,如用戶需要,可代為辦理。
1.供貨范圍
(1)除塵器本體一臺(套)
(2)除塵器濾袋一套(含骨架等)
(3)電氣控制柜一臺(套)
(4)鎖風裝置一臺(套),B型設備不含其項
(5)壓氣系統元件一臺(套)
2.服務方式
(1)負責指導安裝,質量檢測和跟蹤,培訓崗位工人和相關技術人員。
(2)負責調試達標。
(3)建立長期服務網店,長期提供易損的配備件并隨時到廠為用戶解決相關問題,并提供相關技術咨詢。
(4)如我們樣本中的定型產品不能滿足工藝要求時,可根據用戶提出的要求,對收塵器進行特殊設計制造。
3.提供的資料
(1)提供除塵器安裝調試說明書
(2)提供除塵器使用說明書
(3)提供除塵器電控裝置接線圖
(4)提供除塵器電控裝置操作說明書
(5)提供發貨清單
(6)提供產品合格證書