
服務熱線: 濕式除塵器生產廠家
您的位置: 河北富宇環保設備有限公司 > 粉塵除塵設備 > 濕式除塵器

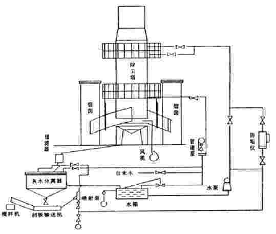
BLS-118L濕式脫硫除塵器適應各種惡劣條件,并克服了其它水除塵無法克困難,該系統Z大特點是:BLS-118L濕式脫硫除塵器采用雙錐形塔除塵,使泥水不接觸筒壁,防止了粘灰造成的堵塞。
簡介
根據多家水法除塵在使用中存在的問題,領導及技術部門經過反復考察,潛心和吸收消化了多家水除塵之優點集為一體,并采用很多D創技術,研制成功了一TA-O適應各種燒結方法,適應各種惡劣條件,并克服了其它水除塵無法克困難的水法除塵器,即BLS-118L濕式脫硫除塵器和KFX-Ⅰ型快速泥水分離器,該系統比較大特點是:
1、BLS-118L濕式脫硫除塵器采用雙錐形塔除塵,使泥水不接觸筒壁,防止了粘灰造成的堵塞。
2、噴水頭裝在塵區以外,使塵與噴頭不予接觸,解決了因噴頭堵塞水噴不出而影響吸塵效果問題。
3、采用雙塔直接裝在立窯的兩支煙囪上,避免了煙氣行走彎路造成的阻力,因此設備阻力很低,無需用誘導風也不會產生倒反煙現象。
4、采用大水量除塵,促使循環水加快,這樣水溫較低,可解決管道結構、水蒸發量減少,并且除塵效果不好。
5、全部使用循環水,應該不往窯下排放和浪費水資源。
6、收塵后排出的污水可通過泥水分離器將泥和水快速分離開,BLS-118L濕式脫硫除塵器分離出來的泥以粥糊狀連續排向雙軸攪拌機,并且不需任何排泥專用設備,回收的泥漿100%回收利用,絕無排到地面而造成的二次污染問題。
7、設備運行費低,耗電僅有9KW。
8、投資少,與同類產品相比投資低10萬元左右/TA-I。因此,該技術在很大程度上都優越于現有的各種形式的水除塵器,并且保證除塵效果,明火窯粉塵排放濃度不CA過150mg/m3,暗火窯不CA過100mg/m3。
技術性能BLS-118L濕式脫硫除塵器
1、處理能力為30000—60000m3/h;
2、允許含塵濃度50g/m3以內;
3、除塵效率≥99.6%以上;粉塵排放濃度低于G家二類地區執行標準;
4、污水處理量20m3/h;
5、耗水量0.2m3/h;
6、耗電量9KW,需誘導風時為31KW;
7、排出泥漿含水量50%;
8、治理后可去除二氧化硫50%以上;
9、循環水利用率100%;
10、回收物料利用率100%;
11、設備投資40-50萬元/TA-ITA-O。
|
BLS-118L濕式脫硫除塵器
|
||
|
||

